226 Maiden Lane, Fayetteville, NC 28301 Liberty Ridge Lending, LLC Company NMLS ID# 2649030 Speak with your loan officer for details. You are NOT required to use Liberty Ridge as a condition to purchase a home, but you are required to use Liberty Ridge to qualify for certain Ben Stout Construction incentives or promotions. Not a commitment to lend. Borrower must meet qualification criteria. 

Ham Farm

Greene County | LaGrange, NC
Homes Starting at $259,950

Greene County | LaGrange, 28551 | Homes Starting at $259,950

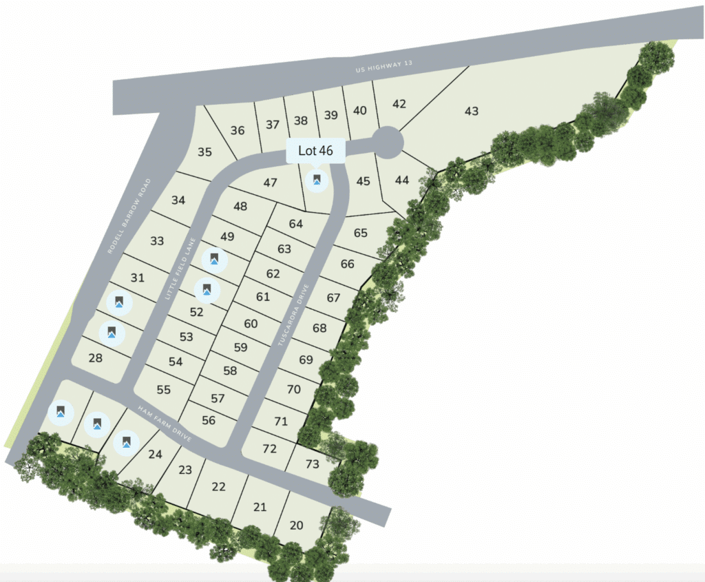
Ham Farms Neighborhood in LaGrange, NC 28551 by Ben Stout Construction

Ham Farms is a welcoming neighborhood in Greene County, located in LaGrange, NC 28551, offering a comfortable blend of small-town living and modern convenience. The community features spacious homesites and thoughtfully designed homes that provide room to breathe while maintaining a close-knit, residential feel. Residents enjoy a quieter pace of life with easy access to nearby highways, local shopping, and everyday amenities, making Ham Farms an appealing option for those who value space, simplicity, and a relaxed lifestyle without feeling disconnected.

Available Listings

Coming Soon

Incentives

Move-In Ready

Pending/UnderContract

Sold

Available Listings

Coming Soon

Incentives

Move-In Ready

Pending/UnderContract

Sold

Available Listings

Coming Soon

Incentives

Move-In Ready

Pending/UnderContract

Sold

Available Listings

Coming Soon

Incentives

Move-In Ready

Pending/UnderContract

Sold

Ham Farms Neighborhood in LaGrange, NC 28551 by Ben Stout Construction

Ham Farms is a welcoming neighborhood in Greene County, located in LaGrange, NC 28551, offering a comfortable blend of small-town living and modern convenience. The community features spacious homesites and thoughtfully designed homes that provide room to breathe while maintaining a close-knit, residential feel. Residents enjoy a quieter pace of life with easy access to nearby highways, local shopping, and everyday amenities, making Ham Farms an appealing option for those who value space, simplicity, and a relaxed lifestyle without feeling disconnected.

*Special incentives provided by Ben Stout Construction. Not all applicants will qualify. Rates, fees, terms, and programs are subject to change without notice. Not all loans, loan sizes, or products may apply. Loans are subject to borrower qualifications, including income, property evaluation, sufficient equity in the home to meet loan-to-value requirements, and final credit approval. Approvals are subject to underwriting and program guidelines and may change without notice. Additional requirements, restrictions, and underwriting conditions may apply. Speak with your loan officer for details. You are NOT required to use Liberty Ridge Lending as a condition to purchase a home, but you are required to use Liberty Ridge to qualify for certain Ben Stout Construction incentives or promotions. Stout Construction incentive or promotions

Home Search Help

Looking for a home or want details on a neighborhood? Complete the form below, and our team will be in touch shortly.

Contact Us

226 Maiden Lane, Fayetteville, NC 28301 Liberty Ridge Lending, LLC Company NMLS ID# 2649030 Speak with your loan officer for details. You are NOT required to use Liberty Ridge as a condition to purchase a home, but you are required to use Liberty Ridge to qualify for certain Ben Stout Construction incentives or promotions. Not a commitment to lend. Borrower must meet qualification criteria. 

For qualified Military and veteran buyers with valid DOW/VA issued identification. This promotion can be combined with other Ben Stout Construction incentive offers, but it cannot exceed the total seller contribution requirements set by the lender and loan product.  *Special incentives provided by Ben Stout Construction. Not all applicants will qualify. Rates, fees, terms, and programs are subject to change without notice. Not all loans, loan sizes, or products may apply. Loans are subject to borrower qualifications, including income, property evaluation, sufficient equity in the home to meet loan-to-value requirements, and final credit approval. Approvals are subject to underwriting and program guidelines and may change without notice. Additional requirements, restrictions, and underwriting conditions may apply. Speak with your loan officer for details. You are NOT required to use Liberty Ridge Lending as a condition to purchase a home, but you are required to use Liberty Ridge to qualify for certain Ben Stout Construction incentives or promotions.